|
TH型斗式提升機
|
|
發布日期:
2013-4-13
來源:
吉泰建材機械
瀏覽次數:
9045
次 |
|

|
|
一、TH型斗式提升機的用途及特點 TH型斗式提升機是我廠基于HL型斗式提升機研制的新產品,與其相比,具有輸送量大,提升高度高,運行平穩可靠,壽命長等顯著優點。其主要技術性能及參數符合JB3926-85<<垂直斗式提升機>>(該標準等效,參照了國際標準和國外先進標準);牽引用園環鏈符合TM36-8<<礦用高強度園環鏈>>。 本提升機具有以下特點: 1、輸送量大,相同斗寬的TH型與HL型相比,輸送量增大近一倍: 2、采用了組裝式鏈輪。有輪體、輪緣用高強度螺栓聯接而成。在鏈輪磨損到一定程度后,可擰下螺栓,拆換輪緣,更換方便,且節約拆料、降低了維修費; 3、下部采用了重錘杠桿式張緊裝置,即可實現自動張緊。一次安裝后不需調整,又可以保持恒定的張緊力,從而保證機器的正常運轉,避免了打滑或脫鏈; 4、牽引件為低合金高強度園環鏈,經適當的熱處理后,具有很高的抗拉強度和耐磨性,使用壽命長。 本提升機為混合或重力方式卸料,掏取式裝料,適用輸送堆積密度不大于1.5噸/米 3 的物料的粉狀、粒狀、小塊狀的低磨琢性物料,物料的溫度不得超過250度。 本機備有兩種料斗: zh型(中深斗)一般使用于輸送濕的,一結塊,較難拋出的物料, 如濕砂、型砂、化肥、堿粉等。 sh型(深斗)一般使用于輸送干燥的、松散易于拋出的物料,如水泥、碎石、煤塊、等。
本提升機代號為TH,即園環鏈斗式提升機;產品規格以斗寬表示,其主要列于表1 |
|
|
型 號 |
TH160 |
TH250 |
TH315 |
TH400 |
TH500 |
TH630 |
TH800 |
TH1000 |
TH1250 |
|
料斗型式 |
zh |
sh |
zh |
sh |
zh |
sh |
zh |
sh |
zh |
sh |
zh |
sh |
zh |
sh |
zh |
sh |
zh |
sh |
|
輸送能力,m 3 /h |
19 |
30 |
30 |
48 |
35 |
59 |
58 |
94 |
73 |
118 |
114 |
185 |
150 |
240 |
240 |
360 |
360 |
540 |
|
料斗 |
料斗容量(l) |
1.2 |
1.9 |
3 |
4.8 |
3.75 |
6 |
5.9 |
9.5 |
9.3 |
15 |
14.6 |
23.6 |
24 |
38 |
38 |
60 |
60 |
95 |
|
斗距(mm) |
350 |
450 |
512 |
688 |
936 |
936 |
1001 |
|
鏈條 |
園鋼徑
x節(mm) |
φ12X45 |
φ18X64 |
φ22X86 |
φ24X86 |
φ24X86 |
φ28X92 |
|
單鏈條破
斷強(KN) |
≥170 |
≥320 |
≥480 |
≥560 |
≥560 |
≥660 |
|
料斗運動
速度 (m/s) |
1.3 |
1.2 |
1.4 |
1.5 |
1.6 |
1.6 |
1.6 |
|
傳動鏈輪轉數 (r/min) |
62.5 |
46.8 |
42.5 |
37.6 |
35.8 |
31.8 |
30.5 |
30.5 |
28 |
|
輸送物料的 最大塊度(mm) |
20 |
25 |
35 |
40 |
50 |
60 |
75 |
85 |
100 |
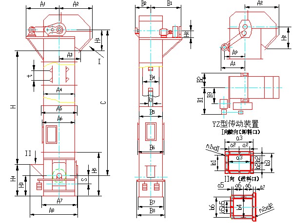
* :表中料斗容積為料斗盛水時容積。于實際填充量相近,故輸送量計算時未考慮填充系數,具體選型時應根據物料特性查表(3)求得ψ修正值以此值修正表給輸送量。 二 、提升機的結構型式圖如下、主要尺寸參數見表2、傳動裝置技術規范見表3. |
|
| |
|
|